KAP1
LABOR
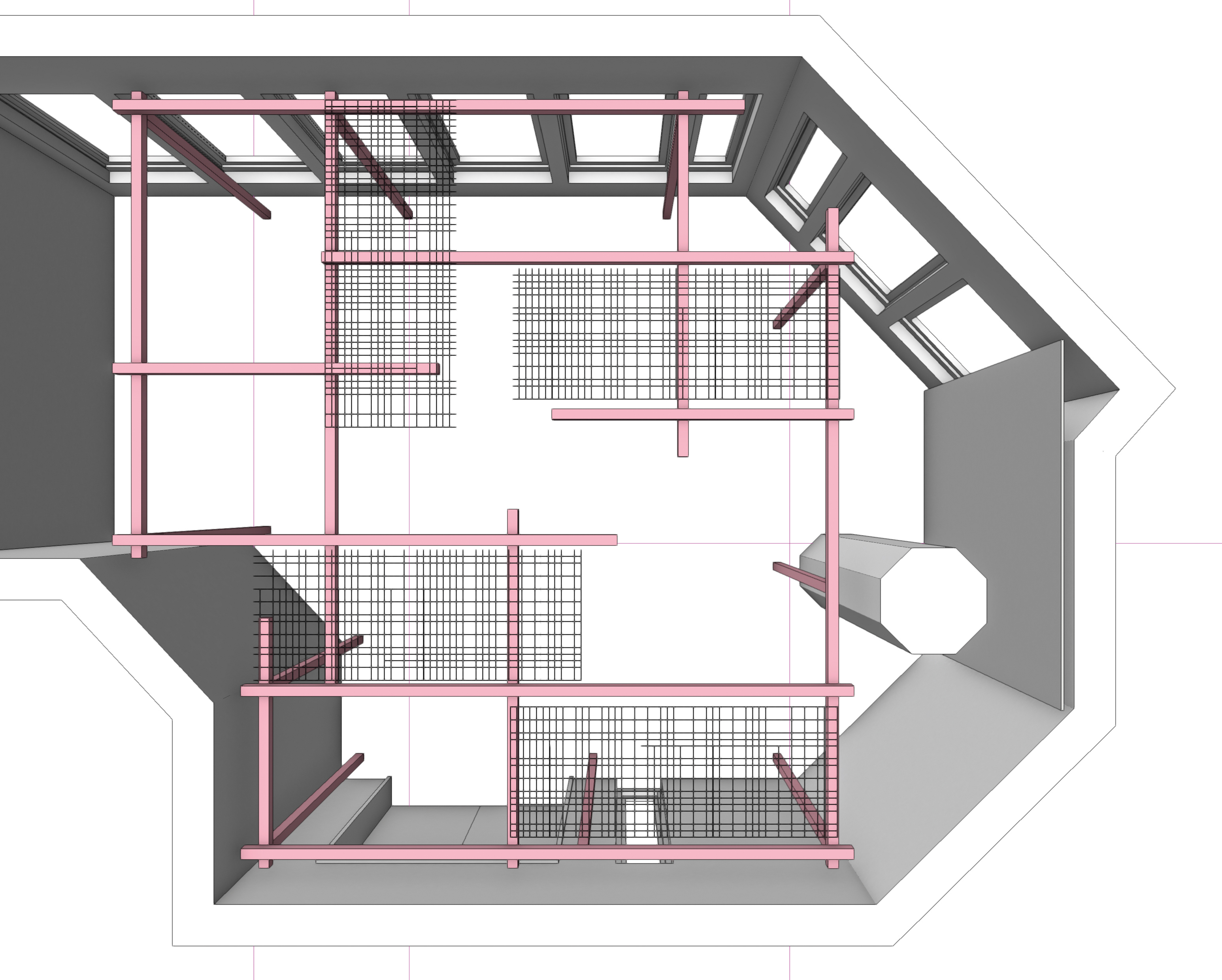
Eine Installation in einem Raum der Stadtbücherei Düsseldorf. Dieser fungiert nicht nur als Ankündigung der Neueröffnung der Stadtbücherei in einem anderen Gebäude, sondern auch als Workshop-, Gruppen-, oder als Aufenthaltsraum.
Die Installation bildet einen Raum im Raum mit einem Holzgerüst aus Vierkanthölzern und unterschiedlichen Wandmodulen. Dazu entwickelte ich mit Drasdos nicht nur das Holzgerüst, auch verschiedene Möbel-, Wand- und Deckenelemente für einen, je nach Veranstaltung passenden, individuell zu gestaltenen Raum wurden entworfen und umgesetzt.
Die Installation bildet einen Raum im Raum mit einem Holzgerüst aus Vierkanthölzern und unterschiedlichen Wandmodulen. Dazu entwickelte ich mit Drasdos nicht nur das Holzgerüst, auch verschiedene Möbel-, Wand- und Deckenelemente für einen, je nach Veranstaltung passenden, individuell zu gestaltenen Raum wurden entworfen und umgesetzt.
NEXT︎︎︎